Deze unit kan als zorgkamer dienen óf als zelfstandige woning.
De woning is voorzien van alle gemakken en rolstoeltoegankelijk. Dankzij aansluiting van o.a. water en elektriciteit kan, indien gewenst, een keukenblok geïnstalleerd worden.
De zorgunit is van goede kwaliteit en excellent onderhouden aan zowel de binnen- als buitenkant. Er is altijd met zorg omgegaan met alle faciliteiten.
| Oppervlakte: | 36 m² |
|---|---|
| Afmetingen: | 6,00 m x 6,00 m | Verkoopprijs: | Op aanvraag |
Prijzen exclusief:
- 21% BTW
- Transport-, plaatsings- en kraankosten
- Grondwerk, fundatie
- Stalen rijplaten
- Aansluiten op nutsvoorzieningen
- Zwakstroominstallaties
Wij gaan er vanuit dat de opdrachtgever zorg draagt voor een vlak en draagkrachtig terrein, waarop de units geplaatst kunnen worden. Tevens dient dit terrein goed bereikbaar en berijdbaar te zijn voor onze medewerkers en vrachtwagen met autolaadkraan. Genoemde prijzen zijn indicatief. In verband met de sterk wisselende inkoopprijzen van grondstoffen en onderdelen behoudt Boxtom zichzelf het recht voor iedere aanvraag een offerte uit te brengen waarbij de geoffreerde prijs af kan wijken ten opzichte van de prijzen als genoemd op de website.
De tweedehands units worden verkocht in de huidige status. De woonunit is te bekijken bij ons op locatie in Goirle.
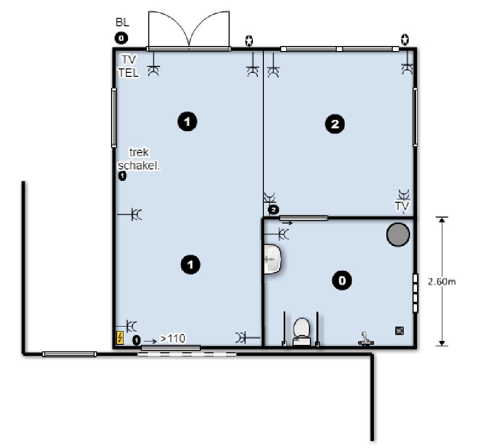
- 2 units MA-Sp (ca. 6x3m. Samen ca. 36 m2)
- Inwendige hoogte ca. 2,6 m
- Geprofileerde staalplaat gevelafwerking in de kleur parelwit (RAL 1013)
- Binnenruimte bewust niet voorzien van tussenwanden (behalve badkamer) om zodoende de ruimte naar eigen wens te kunnen indelen. Voor gebruik van o.a. intensieve zorg is deze mogelijkheid van groot praktisch belang.
- Geïsoleerde houten vloer, wanden en dak met bitumen dakbedekking
- Kunststof draai-kiep ramen voorzien van isolatieglas HR ++
- Boeiboord grijs
- Binnenplinten grijs
- Marmoleum vloerbedekking grijs, naadloos gelegd
(Tarkett Veneto 2 mm) - Wit afgewerkt plafond
- Antislip vloerbedekking in badkamer
- 2x elektrische verwarming
(in zorgkamer en badkamerverwarming) - Verlichting
- Groepenkast elektriciteit
- Badkamer / sanitaire ruimte met inloopdouche
- Douche combinatie van merk Grohe met thermostatische kraan
- Elektrische boiler
- Wastafel met koud en warm water
- Spiegel
- Chromen handdoekrek naast wastafel
- Verhoogde toiletcombinatie (WISA reservoir)
- 2 opklapbare Linido steunbeugels (wit) 70 cm naast toilet
- Plafondventilator in badkamer
- Uitzetbaar bovenlicht raam (naar binnen openend) in badkamer met op maat gemaakt Unilux horraam
- Badkamer en toegang zorgkamer voorzien van schuifdeur in extra breedte van 1.10 m
- Badkamerwanden geheel verstevigd om bijvoorbeeld een douchestoel of zware wanddecoratie. Dit geldt ook voor de binnenwand van de zorgkamer die grenst aan de badkamer
- Plafondplinten zijn geschikt om iets aan op te hangen.
- Wandcontactdozen, aansluitpunten voor Coaxkabel, telefoon en televisie
- Vensterbanken
- Philips buitenlamp met dag- en nacht sensor in kleur wit
- Rookmelder
- Knopcilinders
- Verlichting apart geschakeld
- Dubbele naar buiten opengaande tuindeuren
- Electrische rolluiken rondom (kwaliteitsmerk Verona)
- Gordijnrails voor tuindeuren
Tevens overname van volgende hoogwaardige artikelen mogelijk, prijs n.t.b. :
- Kwalitatief uitstekende overgordijnen van merk De Ploeg voor tuindeuren
- Elektrisch hoog-laag bed van topmerk Wissner Bosserhoff-model Movita.
Let op: deze woonunit staat nog bij de huidige eigenaar.
Neem bij interesse contact met ons op.
Plattegrond
Heb je vragen over deze tweedehands woonunit?
Tweedehands units zijn alleen voor de verkoop, heeft u vragen over een van onze units? Neem gerust contact met ons op!
Bekijk onze tweedehands woonunits in onze werkplaats
Benieuwd naar een tweedehands unit? Of wil je graag de units in het echt een keer bewonderen? Je kan altijd een vrijblijvende afspraak maken!
Veelgestelde vragen
Plaatsing gebeurt in eigen beheer door de buitendienst van Boxtom. In veel gevallen kunnen wij met onze eigen kraanwagen de woningen plaatsen. De kosten daarvan zijn afhankelijk van uw locatie. Als de locatie goed bereikbaar is kunnen we de unit plaatsen met onze eigen kraanwagen. Moet de woning over een huis worden getild of verder dan onze eigen kraanwagen aankan, dan schakelen we een telescopische kraan in. De kosten daarvoor liggen hoger dan die voor onze eigen kraanwagen
Voor de eigen kraanwagen geldt als regel dat de toegangsweg maar de locatie minimaal 3,5 meter breed moet zijn met een minimale doorgangshoogte van 4,5 meter. De vrije ruimte op de locatie moet idealiter 6 meter breed en 8 meter hoog zijn. Dit zijn optimale plaatsingsomstandigheden en gelden als richtlijn. Normaliter vindt er een locatiebezoek plaats door een deskundig medewerker van Boxtom om de situatie ter plekke te beoordelen en afspraken daaromtrent met u te maken.
We hebben een behoorlijke verhuurvloot aan woonunits en mantelzorgwoningen beschikbaar. Het is alleen niet zo dat al die woningen op elk gewenst beschikbaar zijn. Uiteraard hebben wij een goed zicht op wanneer er een unit terugkomt uit de verhuur. De richtlijn is dat je ten minste drie maanden voordat je een unit nodig hebt, een huurovereenkomst bij ons aan gaat. Op die manier hebben wij voldoende tijd om de juiste woning voor je te reserveren.
We hebben een eigen werkplaats waar we de woningen bouwen. Van de start tot de plaatsing zijn we zo’n zes weken bezig. Dit is afhankelijk van het type woning en het afwerkingsniveau.
De plaatsing van een mantelzorgwoning regelt onze buitendienst voor je. In de meeste gevallen plaatsen wij met onze eigen kraanwagen jouw woning. De kosten daarvan zijn afhankelijk van je locatie. Wanneer de locatie goed bereikbaar is plaatsen we deze met onze eigen kraanwagen, maar zodra de woning bijvoorbeeld over een huis getild moet worden dan schakelen we een telescopische kraan in. De kosten liggen in het laatste geval iets hoger.
Voor onze eigen kraanwagen geldt dat de toegangsweg maar de locatie minimaal 3,5 meter breed moet zijn met een minimale doorgangshoogte van 4,5 meter. De vrije ruimte op de locatie is idealiter 6 meter breed en 8 meter hoog. Dit zijn optimale plaatsingsomstandigheden en gelden als richtlijn. Voordat de woning geplaatst wordt brengt een deskundig medewerker een bezoek en beoordeelt de plaats. Vervolgens stemmen we met jou af hoe de aanpak van het project eruit gaat zien.
We adviseren de mantelzorgwoning door je huisinstallateur of vaste aannemer aan te laten sluiten. Doorgaans zijn zij het beste op de hoogte van de situatie bij jou op locatie.
Het begint allemaal bij het creëren van een degelijke ondergrond. Dit is afhankelijk van de situatie en hoe lang je de mantelzorgwoning wilt laten staan. Wij komen hiervoor graag naar je toe om de situatie ter plekke te beoordelen en je van advies te voorzien.
Net als elke woning heeft ook een mantelzorgwoning onderhoud nodig. We adviseren om met regelmaat het dak te laten controleren op verontreiniging zoals bladeren. Dit om te voorkomen dat de afvoer verstopt raakt en er lekkages ontstaan. Wanneer regulier onderhoud niet mogelijk is door jouzelf, kun je tegen betaling onze buitendienst inschakelen.
Jazeker! Wanneer je een mantelzorgwoning wilt huren ben je gebonden aan onze standaardafmetingen en afwerkingsniveau. Maar als je gaat kopen heb je natuurlijk alle vrijheid. Je kiest zelf de indeling en hebt volop inspraak in de materiaalkeuzes en het afwerkingsniveau.
In principe niet. Wel vraagt in de meeste gevallen de Gemeente of je een verklaring voor ze hebt of dat er wel écht sprake is van een mantelzorgwoning. Je huisarts of de wijkverklaring kan je helpen aan deze verklaring.
Je hebt geen vergunning nodig voor een mantelzorgwoning, als je voldoet aan de voorwaarden. Je hoeft dan de gemeente ook niet vooraf op de hoogte te stellen van je plannen. We adviseren echter wel om dit te doen, met name om verassingen achteraf te voorkomen. Via www.omgevingsloket.nl kun je controleren of je bouwplannen vergunningsvrij zijn. Via dit online loket kun je eventuele vergunningen aanvragen.
Dit mag wanneer een prefab mantelzorgwoning voldoet aan twee dingen. Ten eerste de regels binnen het bestemmingsplan. Ten tweede de eisen van het bouwbesluit voor mantelzorgwoningen. Tot nu toe komt daar in de meeste gevallen bij dat er een zorgindicatie vereist is voor een mantelzorgwoning zonder vergunning. Deze indicatie geeft een huisarts of een verpleegkundige af. Bij een pre-mantelzorgwoning is dit dus niet nodig. Let op dat je de plaatsing van een mantelzorgwoning altijd afstemt via het omgevingsloket van de gemeente.
Meer tweedehands woonunits
36 m²
Uitstekend onderhouden tweedehands zorgunit
- 6,00 m x 6,00 m (36 m²)
- Ter uitbreiding of als zelfstandige woning
- Verkoopprijs: op aanvraag
54 m²
Kantoorruimte met sanitaire voorzieningen
- 3,00 m x 18,00 m (54 m²)
- Deze unit is te gebruiken voor dagbesteding of als kantoorunit
- Verkoopprijs: op aanvraag