Wegens hemelvaartsdag zijn wij op 14 en 15 mei gesloten.

Speciaal ontworpen mantelzorgwoning

Met trots hebben we onlangs een nieuwe mantelzorgwoning opgeleverd die volledig is ontworpen in samenwerking met de opdrachtgever. Een woning die niet alleen praktisch is, maar vooral voelt als thuis. Precies zoals bedoeld voor een fijne, comfortabele en zelfstandige manier van wonen, dicht bij dierbaren.

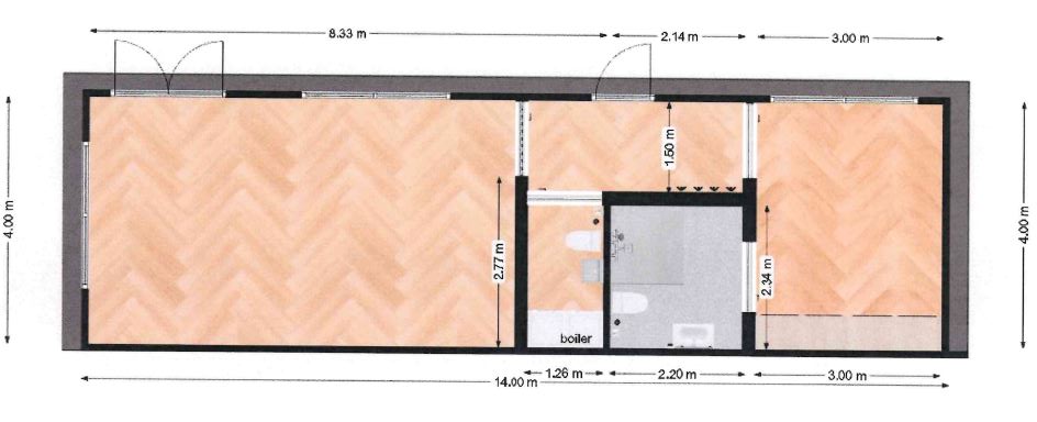
Doordachte indeling van 56m2
De mantelzorgwoning heeft een totale oppervlakte van 56 m², opgebouwd uit twee units die naadloos met elkaar zijn verbonden. De indeling is ontworpen met oog voor comfort én zelfstandigheid:

  • Open keuken met voldoende ruimte om samen te koken en te leven
  • Aparte zithoek voor ontspanning en gezelligheid
  • Openslaande deuren naar de tuin voor extra licht, lucht en verbinding met buiten
  • Lichte slaapkamer, direct toegankelijk vanuit de woonkeuken én de badkamer
  • Ruime badkamer met aangepast douchetoilet voor extra comfort en veiligheid

 

Een sfeerimpressie 

Badkamer met toiletdouche-combinatie

Het traject bij Boxtom

Samen ontworpen, tot in detail uitgewerkt
Samen met de opdrachtgever hebben we alle wensen vertaald naar een doordacht ontwerp, waarbij functionaliteit en warmte centraal staan. Zo is er gekozen voor een ruim overstek met geïntegreerde spotjes en kunststof gevelpanelen met houtmotief, waardoor de woning ook buiten een uitnodigende en veilige uitstraling heeft.

Binnen is de woning voorzien van een op maat gemaakte inbouwkast, een aangepast douchetoilet-combinatie en hoogwaardige materialen zoals een PVC-visgraatvloer die zorgt voor een moderne, huiselijke sfeer.

Plattegrond