Wegens hemelvaartsdag zijn wij op 14 en 15 mei gesloten.

Skaeve Huse in prachtige omgeving

Skaeve Huse is een bijzondere woonvorm bedoeld voor bewoners van de stad die zich niet aan een gewone woonomgeving aanpassen, omdat ze dit niet kunnen of niet willen. Skaeve Huse is onder begeleiding wonen, in een rustige omgeving, met weinig prikkels van buitenaf.

Boxtom heeft al diverse projecten van deze woonvorm mogen realiseren. De woonunits zijn praktisch, eenvoudig en functioneel en sluiten daarmee erg goed aan op de behoeften en wensen van deze doelgroep. Een van deze projecten is het realiseren van twee tijdelijke woningen, type A2, op een prachtige locatie. De gevel van de woning is voorzien van kunststof gevelpanelen in verticale richting aangebracht met een houtlook. Voor de verwarming en koeling is gebruik gemaakt van een airco.

Sfeerimpressie

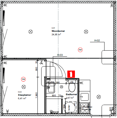
Plattegrond